Jump to content
Subscribe
Search
Michael Owens, Independent
Karen Keys-Gamarra, endorsed by Democrats
Chris Grisafe, endorsed by Republicans
Sandra Allen, Independent
UPF measures a fabric’s effectiveness at protecting against both (UVA) and (UVB) sunrays.
UPF clothing in an abundance of styles and colors makes it easier than ever to …
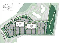
Conceptual site layout of the buildings on COPT’s property in the Washington Tech Park 3 …
Michelle Minstrell of Falls Church (center) and John McEwan (right) speak to Fairfax County Zoning …
Amanda Staudt and Sean Willson, who both live in Reston, are opposed to permitting short-term …
“Our ordinance is 40 years old,” Leslie Johnson, zoning administrator for the county, said during …
Fairfax County Zoning Administrator Leslie Johnson addresses the community during an open house about zMod, …
Jax, our 8-year-old Miniature Pinscher, is playing with his birthday froggy, which is one of …
Site plan of the Arden Courts memory-care facility proposed for Centreville’s Compton Village community.
SS2 bid a fond farewell to seniors Nick Jiang, Jack Jiang, Jacob Elson and Georgia …
2nd Lt. Dan Pang of the Fairfax County Police Department, who served as the Media …
Fairfax County Police Officers at the Sully District Bike Rodeo (from left) PFC Rich Lundquist, …
Caroline Harley of Centreville and the family dog Harriett enjoy the summer. Harriett is a …
Brandon McGorty.
Dr. Paul Curcio of Centreville with his pet kitten, Mitzi on a "relaxing summer's day."
Prev Next